企業信息
北京智控理工偉業科教設備有限公司
地址:北京市通州區馬駒橋景盛南二街15號(中關村園區金橋科技產業基地)
電 話:010-82827827 82827835
傳 真:010-68948559
網 址:http://www.bjlg.com
郵 箱:Ligong99@163.com
QQ:476528239 1183686277
更多相關信息
- 無線電發送與接收實驗
- 位置隨動控制系統
- 溫度控制模型
- 信號與系統·控制理論計算機控制技術實驗箱(配USB數據采集卡、聯網型)
- 信號與系統控制理論實驗箱
- 電能表接線仿真培訓裝置
- 低壓計量反竊電仿真培訓裝置
- 10kV高壓柜實訓裝置
- 低壓電路實訓裝置
- 斷路器漏電保護培訓裝置
- 二次負荷及壓降模擬系統
- 門禁控制系統考核培訓裝置
- 巡更管理系統考核培訓裝置
- 通風排煙系統考核培訓裝置
- 氣體滅火系統培訓裝置
- 采油實訓裝置
- 傳熱操作實訓裝置
- 吸收工考核培訓裝置
- 萃取工考核培訓裝置(DCS控制)
- 輪胎硫化機實訓裝置
- 全數字交流變頻控制提升機實訓裝置
- 架線式煤礦電機車變頻調速系統實訓裝置
- 礦井提升機系統實訓裝置(直流調速)(工程型)
- 三專兩閉鎖演示裝置
- 井下雙回路供電演示裝置
- 礦井膠帶輸送機電氣控制實訓裝置
- 礦井通風機電氣控制實訓裝置
- 絡筒機電氣技能實訓裝置
- 劍桿織機電氣技能實訓裝置
- 絡筒機電氣技能實訓裝置
- 整經機電氣技能實訓裝置
- 細紗機電氣技能實訓裝置
- 梳棉機電氣技能實訓裝置
- 單軸流開棉機電氣技能實訓裝置
- 冷飲制品自動化生產線實訓系統(工程型)
- 啤酒自動化生產線過程控制實訓系統(工程型)
- 電力系統發電機保護仿真實訓裝置
- 電力系統微機變壓器保護實訓考核裝置
- 熱工儀表及控制實訓裝置
- 裝表接電工實訓系統
中央空調空氣處理系統實驗裝置(LON總線型)

一、產品概述
“中央空調空氣處理系統實驗裝置”是從實驗教學需求的角度出發,以工程化的設計理念完整地實現了全空氣中央空調調節系統的工作過程。
二、系統特點
工程化概念強 實驗裝置的整套控制系統大部分采用工業現場實際應用的部件。
技術先進 控制系統部分應用了代表當今中央空調控制系統技術潮流的LONWORKS總線技術,它充分考慮了系統的可擴展性和與樓宇其他子系統的兼容性。
開放性好 整套實驗裝置采用透明化、開放式設計,實驗者能夠直觀清晰地了解整個裝置的工作過程,系統控制部分源代碼完全開放,實驗者可自行添加或修改,進行創新性、設計性實驗。
三、技術性能
外形尺寸:2750mm×700mm×1660mm
采用風冷熱泵型冷熱源形式,在空氣循環區采用二次回風設計
DDC控制器HW-5201
工作電壓:DC24×(1±10%)V或AC17V,允許范圍:AC14.45V~18.7V
工作電流:500mA
網絡:協議:LONTALK;通訊介質:雙絞線(推薦使用:Keystone LonWorks 16AWG(1.3mm) Cable)
I/O 數量:11個UI,4個DO,2個UO,2個AO
DDC控制器HW-5202
工作電壓:DC24×(1±10%)V或AC17V,允許范圍:AC14.45V~18.7V
工作電流:500mA
網絡:協議:LONTALK;通訊介質:雙絞線(推薦使用:Keystone LonWorks 16AWG(1.3mm) Cable)
I/O 數量:11個UI,7個DO
四、系統組成
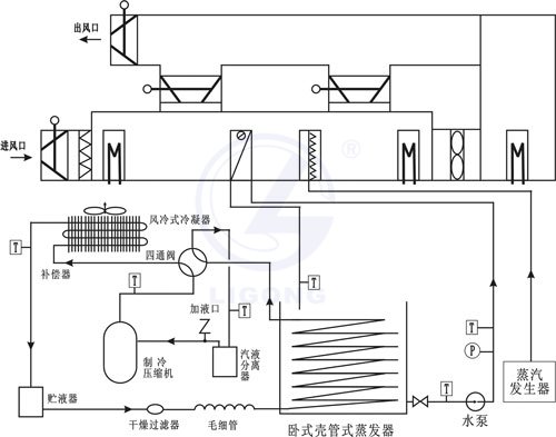
中央空調系統是由換熱器、加濕器、過濾、風扇、傳感器等組成。使用不銹鋼和有機玻璃材料防止設備生銹和老化。設備配有真實的恒溫供暖、恒溫冷氣系統,直觀生動地把工業實際應用展現出來,簡潔明了。采用帶標準LonWorks通訊接口的控制器,保證了中央空調系統與樓宇系列其他子系統及管理層的無逢集成。對象系統集成了四個部分的內容:
空氣系統區
熱交換區
操控及數據顯示
電氣控制區
中央空調對象結構及控制系統的結構圖如下圖所示。

五、實驗項目
封閉式系統冬季運行工況實驗
封閉式系統夏季運行工況實驗
直流式系統冬季運行工況實驗
直流式系統夏季運行工況實驗
一次回風系統冬季運行工況實驗
一次回風系統夏季運行工況實驗
二次回風系統冬季運行工況實驗
二次回風系統夏季運行工況實驗
- 上一篇:中央空調自控系統綜合實驗裝置
- 下一篇:樓宇供配電及照明系統實驗裝置(LON總線型)



